Le Domaine des Alizés

LES ACHARDS – A seulement 15 minutes des Sables d’Olonne avec un accès rapide à la 2×2 voies, La Roche sur Yon / Les Sables d’Olonne. Après avoir livré une 1ère tranche en Janvier 2025, la seconde tranche est lancée à la commercialisation pour une livraison prévue en Juillet 2026.
LES ACHARDS – A seulement 15 minutes des Sables d’Olonne avec un accès rapide à la 2×2 voies, La Roche sur Yon / Les Sables d’Olonne. Après avoir livré une 1ère tranche en Janvier 2025, la seconde tranche est lancée à la commercialisation pour une livraison prévue en Juillet 2026.

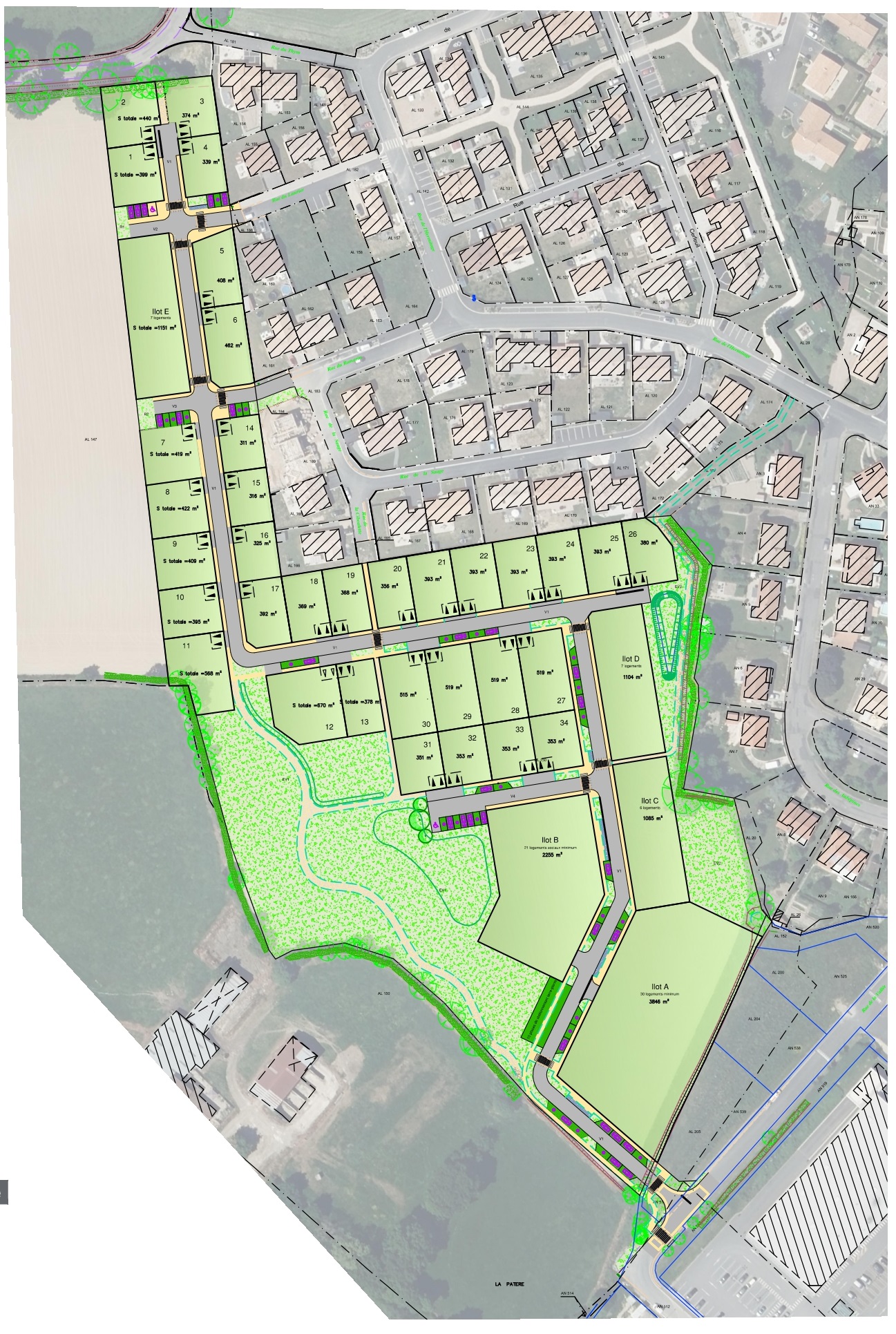
A seulement 15 minutes des Sables d’Olonne avec un accès rapide à la 2×2 voies, La Roche sur Yon / Les Sables d’Olonne, cette nouvelle opération aux Achards vous offre un emplacement de premier choix.

À proximité immédiate des commerces, des écoles et de toutes commodités. Ce terrain vous offre un cadre idéal pour votre confort dans cette ville dynamique et en constant développement !

Numéro du lot
Surface
Prix
Statut
Type de logement
Exposition
Information
supplémentaire
Plan du lot
5
408 m2
84000 €
Disponible
terrain
Est
Façade : 26,00m - Livré
6
462 m2
95000 €
Disponible
terrain
Est
Façade : 26,77m - Livré
18
369 m2
NC
Réservé
terrain
Nord
Façade : 15,00m - Livré
21
393 m2
NC
Réservé
terrain
Nord
Façade : 16,00 m - Livraison Juin 2026
22
393 m2
83500 €
Disponible
terrain
Nord
Façade : 16.00 m - Livraison Juin 2026
23
393 m2
83500 €
Disponible
Nord
Façade : 16.00 m - Livraison Juin 2026
20
356 m2
NC
Réservé
terrain
Nord
Façade : 14.50 m - Livraison Juin 2026
24
393 m2
83500 €
Disponible
terrain
Nord
Façade : 16.00 m - Livraison Juin 2026
33
353 m2
75000 €
Option
terrain
Nord
Façade : 17.00 m - Livraison Juin 2026
25
393 m2
83500 €
Disponible
terrain
Nord
Façade : 16.00 m - Livraison Juin 2026
26
380 m2
82000 €
Option
terrain
Nord
Façade : 17.15 m - Livraison Juin 2026
27
519 m2
107000 €
Disponible
terrain
Sud
Façade : 17.00 m - Livraison Juin 2026
28
519 m2
NC
Réservé
terrain
Sud
Façade : 17.00 m - Livraison Juin 2026
29
519 m2
107500 €
Disponible
terrain
Sud
Façade : 17.00 m - Livraison Juin 2026
30
515 m2
106000 €
Disponible
terrain
Sud
Façade : 16.90 m - Livraison Juin 2026
31
351 m2
NC
Réservé
terrain
Nord
Façade : 16.90 m - Livraison Juin 2026
32
353 m2
NC
Réservé
terrain
Nord
Façade : 17.00 m - Livraison Juin 2026
34
353 m2
75000 €
Option
terrain
Nord
Façade : 17.00 m - Livraison Juin 2026
Le Domaine des Alizés